VERMIETET | Bestlage Kolonie | Neubau-Erstbezug | Exquisite Standards + Ausstattung – B.I.M. Bertol Immobilien

VERMIETET | Bestlage Kolonie | Neubau-Erstbezug | Exquisite Standards + Ausstattung

Zurück

Details der Immobilie

ID
A 5702
Ort
82131 Gauting
Objektart
Doppelhaushälfte
Wohnfläche
169,00 m²
Grundstücksfläche
460,00 m²
Nutzfläche
240,00 m²
Baujahr
2021
Schlafzimmer
4
Badezimmer
2
Zustand
Erstbezug
Verfügbar ab
ab sofort
Unterkellert
Ja
Garagen
1
Carports
0
Stellplätze (Duplex)
0
Stellplätze (Freiplatz)
0
Stellplätze (Parkhaus)
0
Stellplätze (Tiefgarage)
0
Stellplätze (Sonstige)
0
Nebenkosten
180,00 €
Kaltmiete
3.375,00 €

Weitere Ausstattungsmerkmale

Gartennutzung
Kabel/Sat-TV

Angaben zum Energieausweis

Art des Ausweises
Bedarfsausweis
Wesentliche Energieträger
Wärmepumpe LUFT-WASSER
Endenergiebedarf
18,70 kWh/(m²*a)
Energieeff.kl.
A+

Objektbeschreibung

Bestlage Kolonie.
Doppelhaushälfte der Extraklasse.
Neubau / Erstbezug.
A+ Energieeffizienzklasse.

Hochwertig. Elegant. Raffinierte Details.
Exquisite Ausstattung.
Wunderschöner Sonnenlauf von früh bis spät.

Offenes Wohnen/Essen/Kochen-Ambiente.
Hochwertige Küche, Vollausstattung.
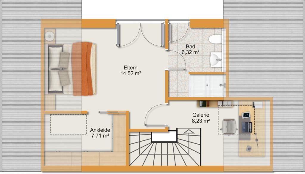
"Kinder-Etage": 3 Schlafzimmer, Vollbad.
"Eltern-Studio": Schlafzimmer, Bürogalerie, Ankleide, Duschbad.

Gäste-WC, Garderobenraum.
Direkter Zugang zur überbreiten Garage.
Großer Hobbyraum. Lagerkeller, Technik-/Hauswirtschaftsraum.
Große Terrasse, ca. 32 m².

Einige Highlights:
- Gesunder Ziegelbau, 45 cm Ziegel.
- Erstklassige Ausstattung.
- Hochwertige Feinsteinzeugplatten in Zement- und Naturoptik, 60x60 cm, Naturparkett Eiche.
- Sparsame Luft-/Wasserwärmepumpe.
- 3-fach-Verglasung.
- Hochwertige Holz-/Alufenster.
- Elektrische Raffstores.
- Markeneinbauküche mit Tresen, Vollausstattung z.B. Bora-Induktionskochfeld, große Arbeitsplatte, sehr viel Stauraum.
- Deckenhöhe im Erdgeschoss: ca. 2,63, im Dachgeschoss bis ca. 4 m, im Keller ca. 2,50 m.
- Individuell steuerbare Fußbodenheizung.
- LAN Verkabelung in allen Zimmern.
- Teilweise Deckenspots.
- LED-beleuchtete Spiegel, dreistufig einstellbar.
- Zentrale Lüftungsanlage mit Wärmerückgewinnungssystem, auch Pollenfilter möglich.
- Wasserenthärtungsanlage.
- und vieles mehr

Verfügbar: kurzfristig nach Vereinbarung.

Hinweise zum Mietvertrag:
Unbefristet.
Gegenseitiger Ausschluss einer ordentlichen Kündigung für den Zeitraum von 24 Monaten.
Tierhaltung, außer Kleintiere, nicht möglich.
Rauchverbot in allen Räumen.

Kaltmiete Haus: 3.375,- EUR
zzgl. Garage: 175,- EUR
zzgl. Betriebskosten: 180,- EUR
= insgesamt: 3.730,- EUR

Alle Angaben beruhen ausschließlich auf Informationen unserer Auftraggeber.
Wir übernehmen keinerlei Gewähr für Aktualität, Richtigkeit und Vollständigkeit.

Lage

Kurze Wege zum Schul-Campus, ins Gautinger Ortszentrum und zum Bahnhof
Schöne ruhige Lage in der Gautinger Kolonie.

Der Münchner Nobelvorort Gauting ist die zweitgrößte Stadt im Landkreis Starnberg und ist eine ausgesprochen attraktive und lebendige Gemeinde im südlichen Speckgürtel. Gauting bietet seinen Bewohnern alles, was für ein angenehmes Leben wichtig ist:
Natur, die Nähe zu den großen Seen und Bergen, viele Geschäfte zum Einkaufen, Ärzte, ein vielfältiges Angebot an Kindergärten und Krippen (sogar englisch-sprachig), neben verschiedenen Grundschulen ein hoch moderner Schulcampus mit Gymnasium, Real- und Mittelschule. Bushaltestelle zur MIS um die Ecke.

Dokumente

Grundrisse H2


Zurück

Ihr Ansprechpartner

Corinna Kovacs

Immobilien-Anfrage

* Pflichtangabe